.webp&w=3840&q=75)
Алюминий
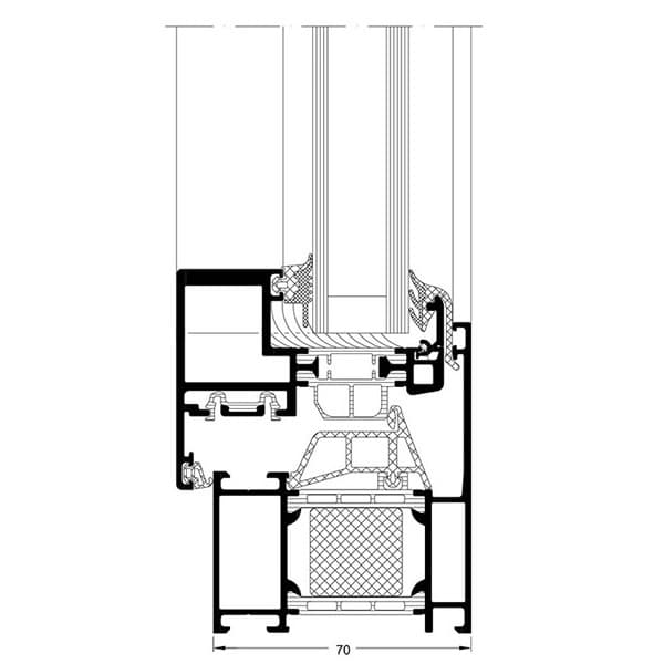
Данный алюминиевый профиль обладает высокой теплоизоляцией, благодаря чему отлично подходит для средней полосы России с умеренно холодными зимами. Обладают монтажной глубиной 70 мм, при этом видимая ширина профиля может варьироваться от 67 до 117 мм.



В ситуациях, когда нужно создать особенно эстетичный внешний вид окон, мы используем узкую блочную систему AWS 70 BS.HI. Ширина видимой части от 67 мм, так как в данной системе используется скрытый штапик. В сочетании со скрытой фурнитурой Schüco AvanTec или Schüco TipTronic система Schüco AWS 70 BS.HI соответствует самым строгим требованиям по дизайну и эксплуатационному комфорту.


Отправьте чертежи вашего проекта, и мы подготовим 3 варианта вашего проекта. Заполните форму или напишите нам на почту: